نبذة

شيماء كمال حاصلة على بكالوريوس هندسة معمارية وتصميم بيئي بشتغل بشكل مستقل في مجال التصميم المعماري ، تصميم اللاندسكيب ، وال3D مودلينج والرندر

شغلي بيعتمد على الدقة في التفاصيل وتوصيل فكرة التصميم بشكل واقعي وجذاب وده من خلال برامج زي:

Revit ، AutoCAD ، SketchUp ، V-Ray ، Enscape

مهتمة جدًا بمجال ال BIM وبقدم بيه حلول تصميمية حديثة ومتكاملة تساعد في تنظيم المشاريع بشكل احترافي

و دايما هدفي إن التصميم يعبر عن شخصية العميل ويوصل فكرته بأفضل شكل ممكن مع الحفاظ على التوازن بين الجمال والوظيفة


وسائل الاتصال

رقم الهاتف:

201550295912+

الايميل:

shimaa1111kamal@gmail.com


التعليم

بكالوريوس هندسة معمارية و تصميم البيئي


الخبرات

مكتب استشارات هندسية

اشتغلت لفترة في مكتب استشارات هندسية

مصمم معماري في مواقع العمل الحر

بشتغل مصمم معماري في مواقع العمل الحر

Revit

بشتغل عليه 3D مودلينج و BIM وكمان رسومات 2D مساقط و قطاعات معمارية

Autocad

بشتغل عليه رسومات 2D مساقط و قطاعات معمارية

Photoshop

تعديل صور وإظهار المساقط والواجهات و القطاعات المعمارية

Vray

رندر واقعي للمشاريع

Enscape

رندر واقعي للمشاريع

Microsoft office

بشتغل برامج Word , Excel , Powerpoint


روابط


مشروع مركز رياضي مائي اوليمبي


اعادة تصميم حديقة شاليه سكني


تصميم واجهات على الطراز المعماري الاسلامي


تصميم مركز ابحاث وابتكار للطاقة المتجددة


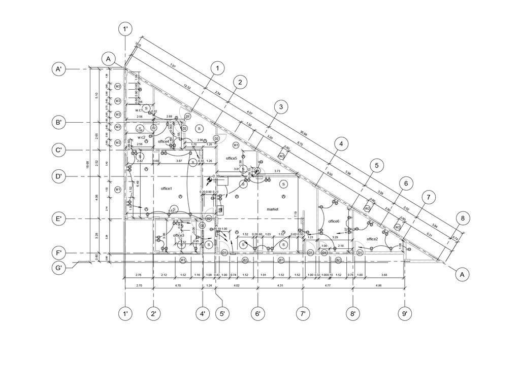
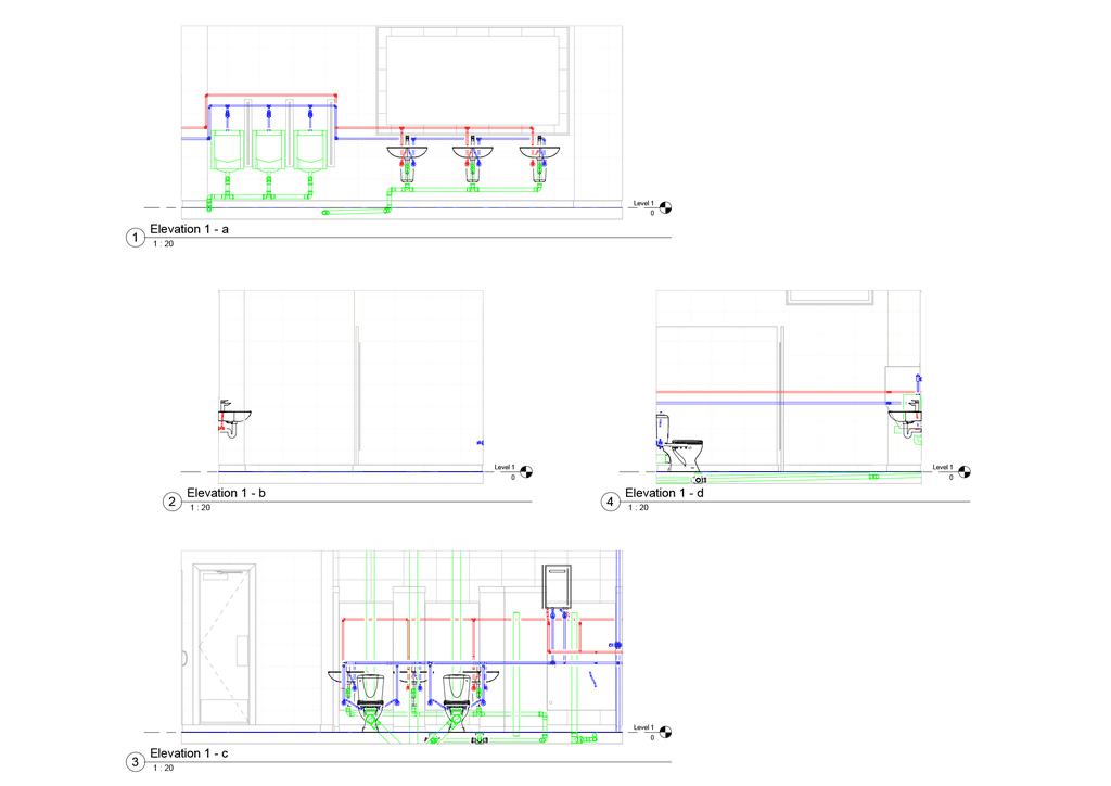
عمل رسومات MEP لمشروعين محطة وقود و دورات مياة عامة


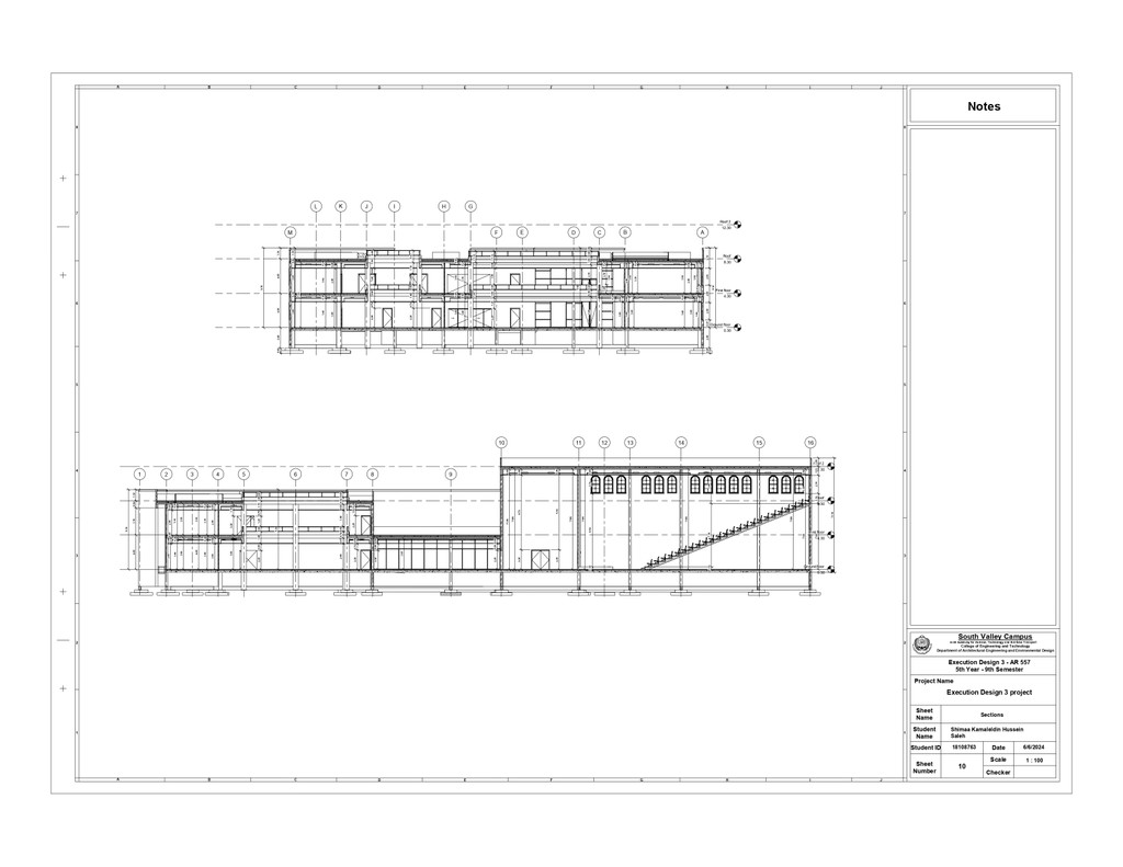
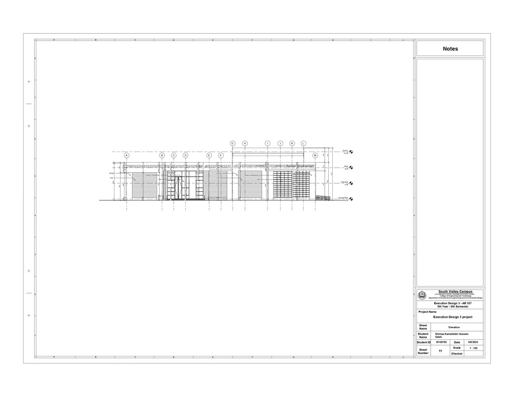
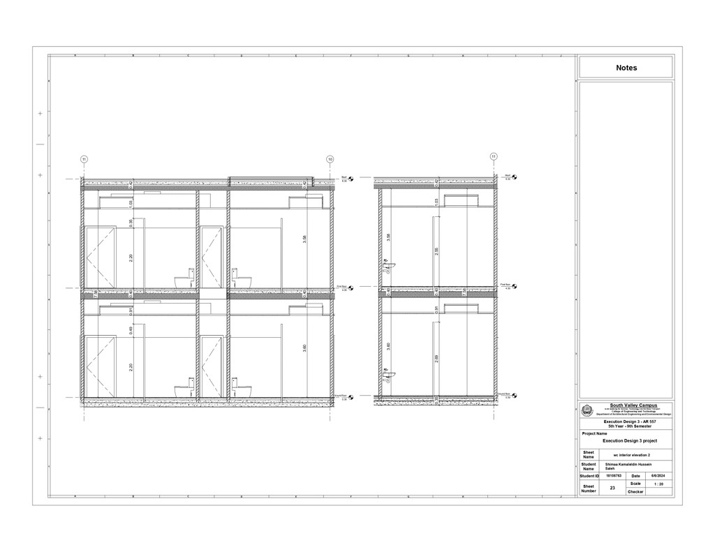
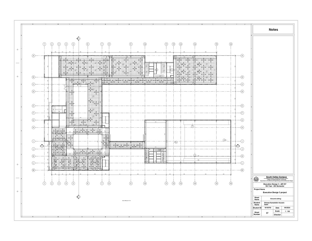
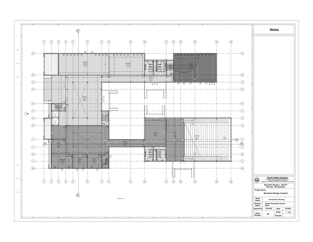
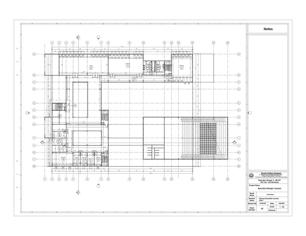
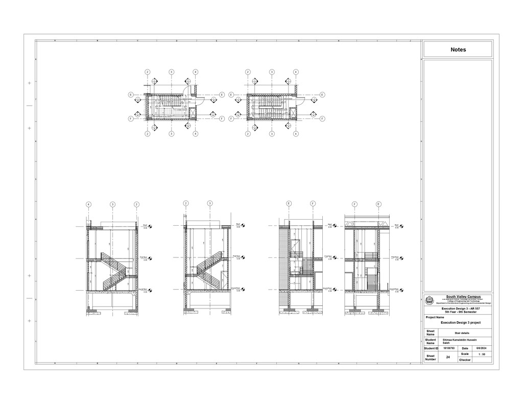
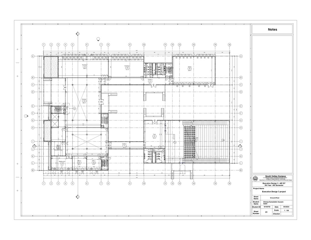
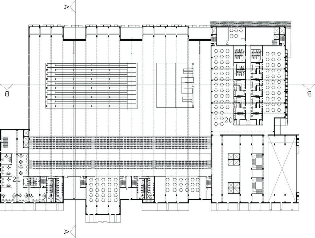
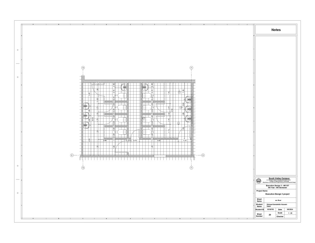
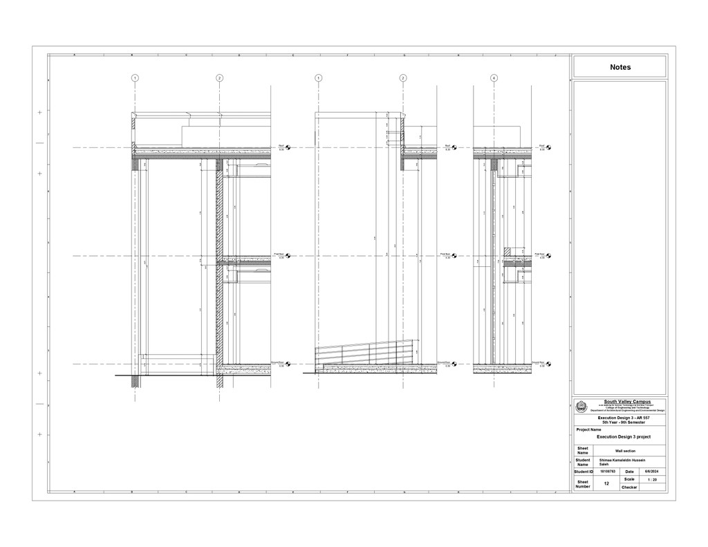
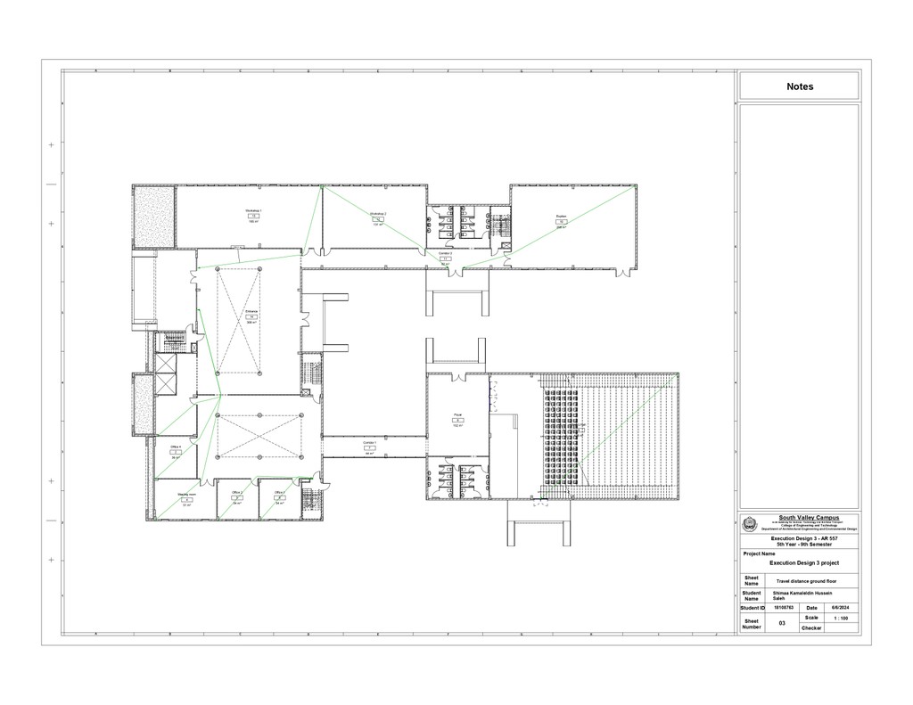
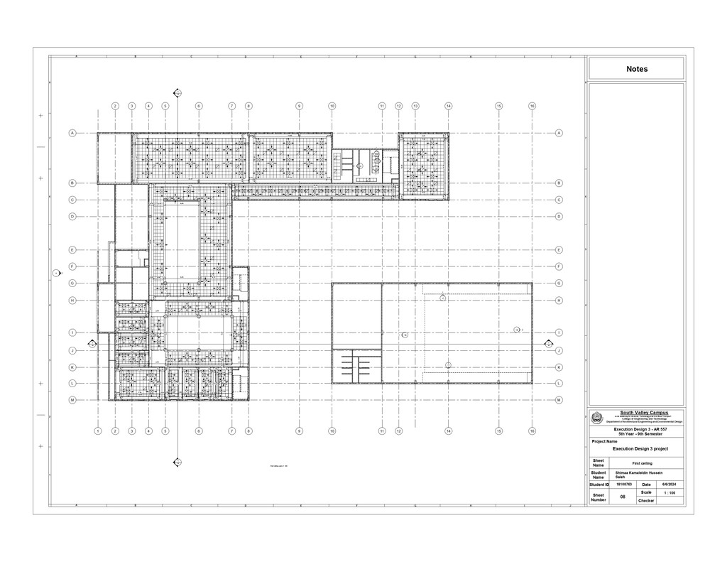
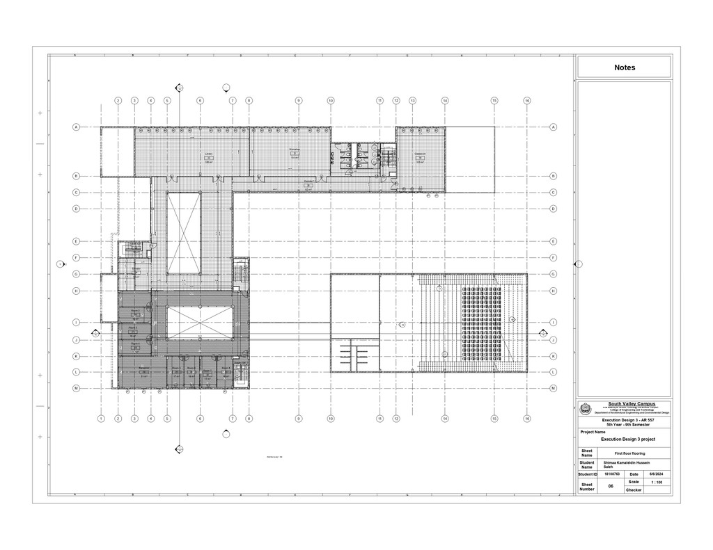
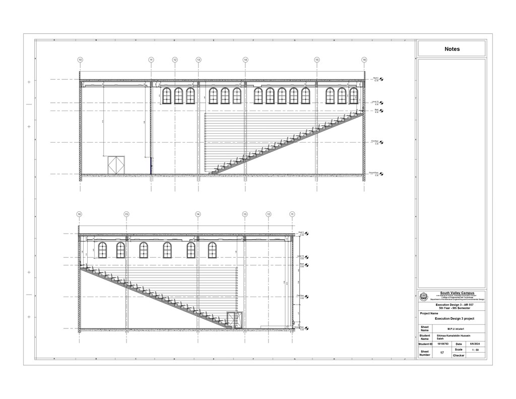
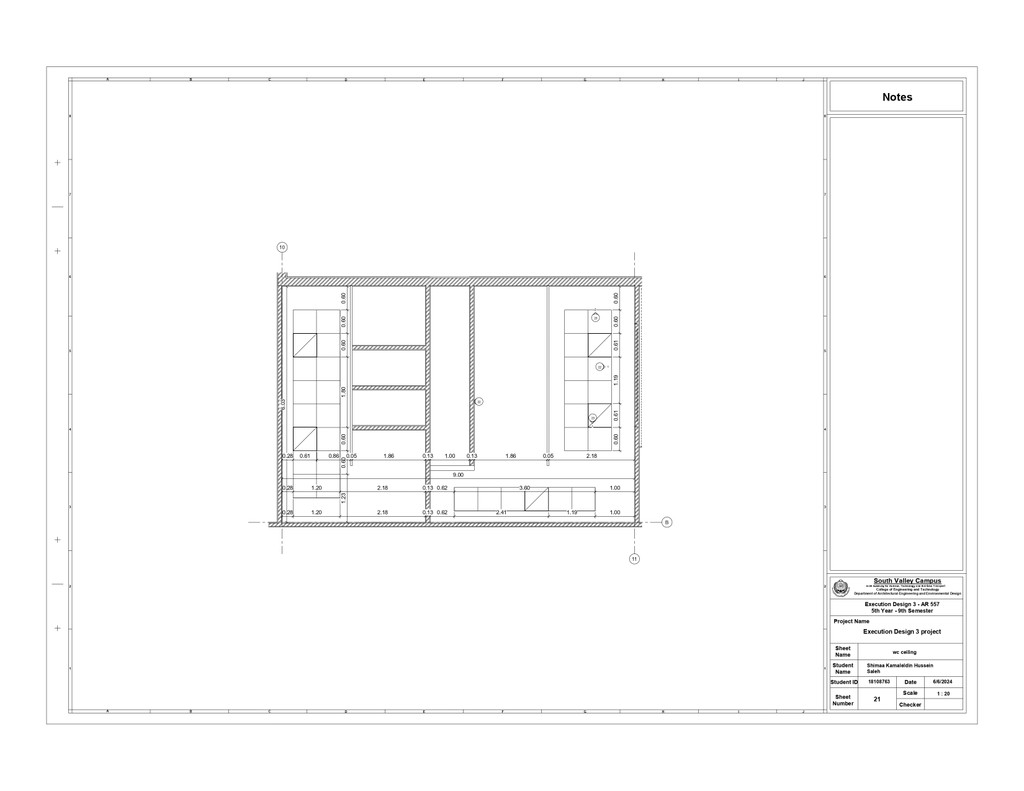
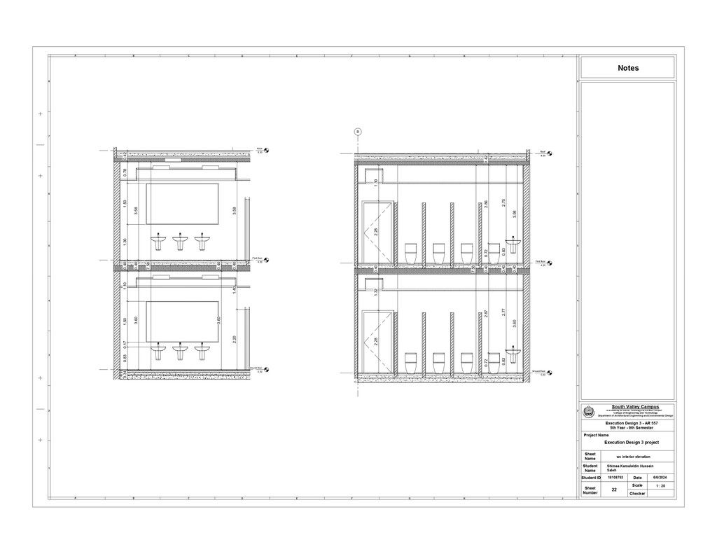
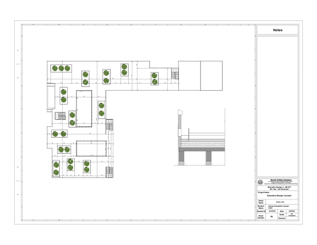
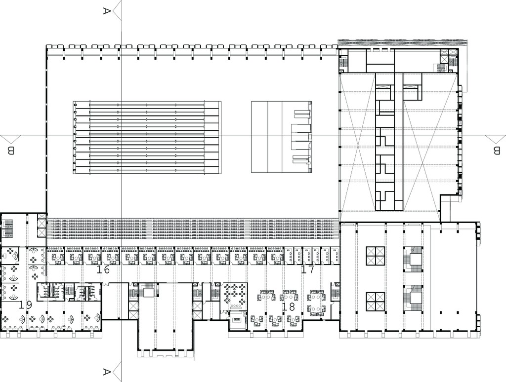
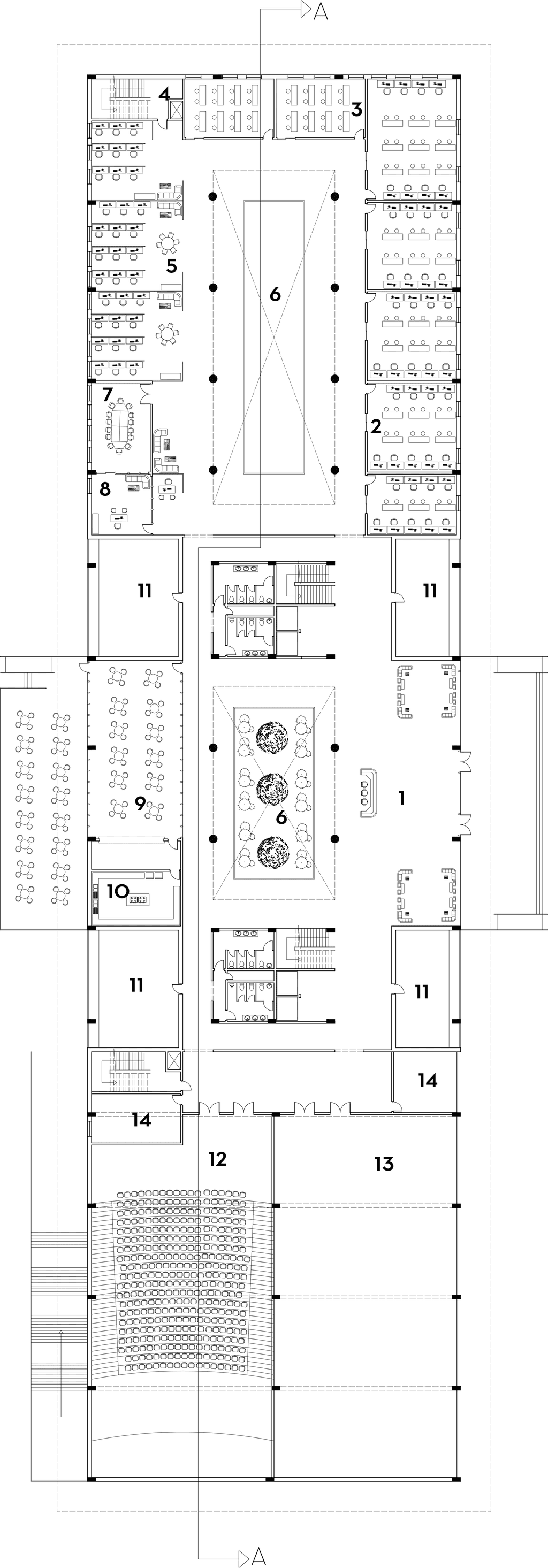
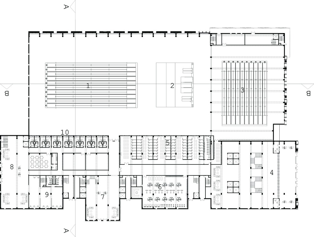
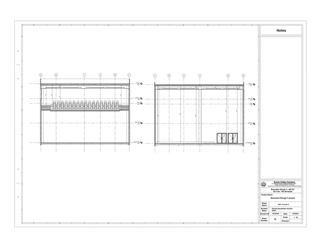
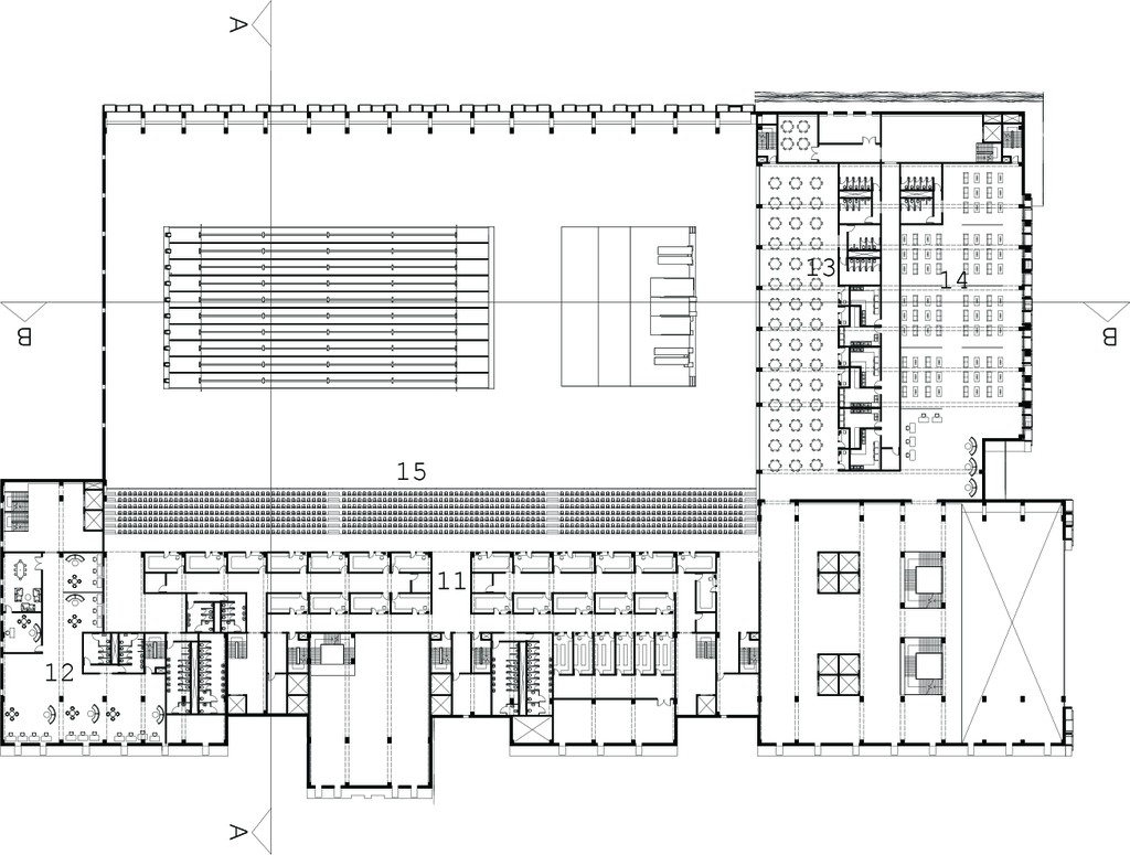
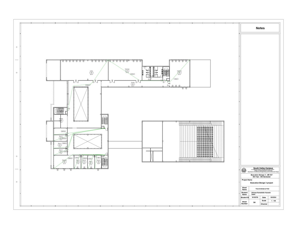
عمل رسومات تنفيذية لمركز ثقافي

هل تبحث عن فرصة للعمل عن بعد؟

حدد التخصصات التي ترغب في العمل بها لنرسل نشرة الوظائف الدورية إلى بريدك الإلكتروني

برمجة وتطوير
تسويق ومبيعات
كتابة وترجمة
تصميم
إدارة وأعمال
دعم فني
المجالات الأخرى