نبذة

مهندسة معمارية طموحة، محترفة في استخدام برامج AutoCAD و Revit و 3D Max لتطوير تصاميم ونماذج دقيقة. أتميز بقدرات تحليلية عالية في التعامل مع التحديات الفنية والالتزام بمعايير الجودة في المشاريع. أسعى لتقديم حلول هندسية مبتكرة من خلال العمل بروح الفريق والاهتمام بأدق التفاصيل الإنشائية.


الخبرات

تصميم مشروع بنك بذور بيت لاهيا:

تصميم معماري وتنفيذي (بلانات، قطاعات، بدروم تقني) باستخدام Revit و AutoCAD.

تصميم مجمع تعليمي (مدرسة وروضة):

تصميم يراعي سيكولوجية الفراغ وفصل الحركة مع إظهار معماري متطور.

تصميم (فيلا سكنية):

تصميم فيلا سكنية مع الاظهار الفراغات الداخلية والفرش للفراغ .

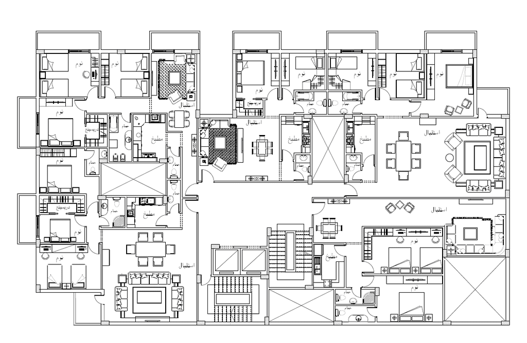
تصميم مشروع مبنى سكني إداري تجاري

تصميم يفصل بين كل وظيفة للمبني ومراعاه التهوية والاضاءة الفراغات .

المسابقات:

مشاركة فعالة في ملتقى العباقرة، مما عزز مهارات الابتكار والعمل الجماعي.

المهارات :

AutoCAD | Revit | 3ds Max | Photoshop .


التعليم

مهندسة معمارية

لقد درست في المعهد العالي للهندسة


هل تبحث عن فرصة للعمل عن بعد؟

حدد التخصصات التي ترغب في العمل بها لنرسل نشرة الوظائف الدورية إلى بريدك الإلكتروني

برمجة وتطوير
تسويق ومبيعات
كتابة وترجمة
تصميم
إدارة وأعمال
دعم فني
المجالات الأخرى